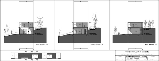
La casa consta de dos plantas.
En la primera planta o podio se emplean los patios (tres descubiertos y dos cubiertos) como elementos de iluminación y ventilación.
Mientras que el comedor se conecta directamente con el jardín, estos patios sirven a los dormitorios de conexión con el jardín, aportándoles privacidad.
Además, una vez se abre la puerta que conecta el patio y el jardín, estos dos se fusionan creando una estancia más grande.
Sobre el podio, se eleva una caja de cristal encerrada por un palio con cinco pilares a izquierda y otros cinco a derecha.

Para resolver la privacidad de esta planta se hace uso de un conjunto de álamos.
Desde la caja de cristal se accede a dos azoteas, una delantera más pequeña y otra trasera más
grande en la que se construye una piscina.